Secure Storage – Cedar Springs

Secure Storage – Cedar Springs

Secure Storage - Cedar Springs Cedar Springs, MI Secure Storage’s Cedar Springs location offers a grand total of 35,100 net rentable square feet of storage, including climate controlled, non-climate controlled, and outdoor storage. The 17-acre property offers a...
Secure Storage – Greenville

Secure Storage – Greenville

Secure Storage - Greenville Greenville, MI Secure Storage’s Greenville location offers a grand total of 39,900 net rentable square feet of storage, including climate controlled, non-climate controlled, and outdoor storage. The 4.5-acre property hosts a total of...
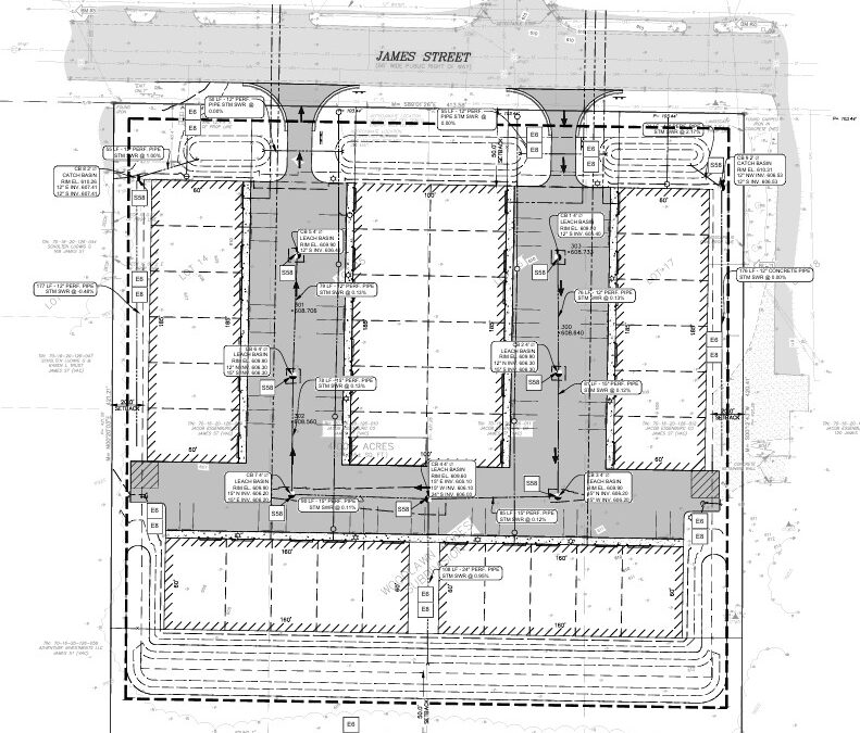
James Street Storage Condos

James Street Storage Condos

James Street Storage Condos Holland, MI COMING SOON – James Street Storage Condos The James Street Storage Condo development will offer 34 storage condos for seasonal/year-round storage or small business ventures. The project is conveniently located near Lake...
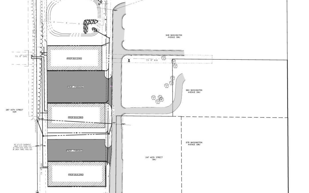
40th Street Storage Condos

40th Street Storage Condos

40th Street Storage Condos Holland, MI COMING SOON – 267 W 40th Street Storage Condos This development will offer 7 storage condos for seasonal/year-round storage or small business ventures. The project is conveniently located near Lake Macatawa in Holland,...
Secure Storage – Tampa

Secure Storage – Tampa

Secure Storage - Tampa Tampa, Florida COMING SOON – Secure Storage Tampa Secure Storage Tampa will offer climate controlled and non-climate controlled units as well as outdoor parking. The property will host 83,575 net rentable square feet of...