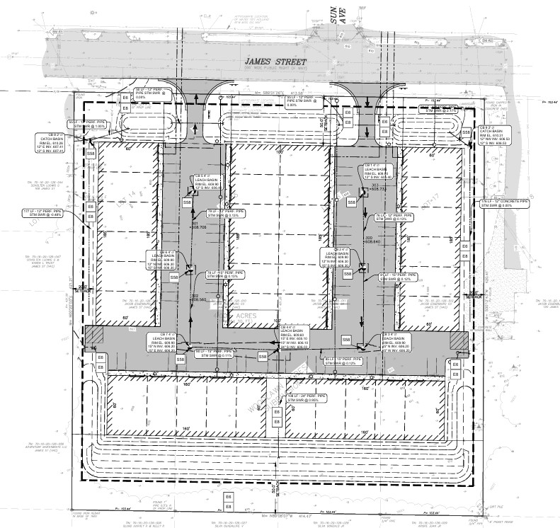
James Street Storage Condos

Holland, MI

COMING SOON – James Street Storage Condos

The James Street Storage Condo development will offer 34 storage condos for seasonal/year-round storage or small business ventures. The project is conveniently located near Lake Macatawa in Holland, Michigan.