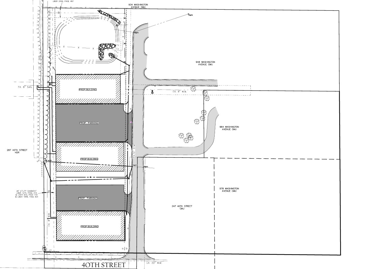
40th Street Storage Condos

Holland, MI

COMING SOON – 267 W 40th Street Storage Condos

This development will offer 7 storage condos for seasonal/year-round storage or small business ventures. The project is conveniently located near Lake Macatawa in Holland, Michigan.