267 Seminole Road

Norton Shores, Michigan

FOR SALE OR BUILD TO SUIT: 267 Seminole Road, Norton Shores

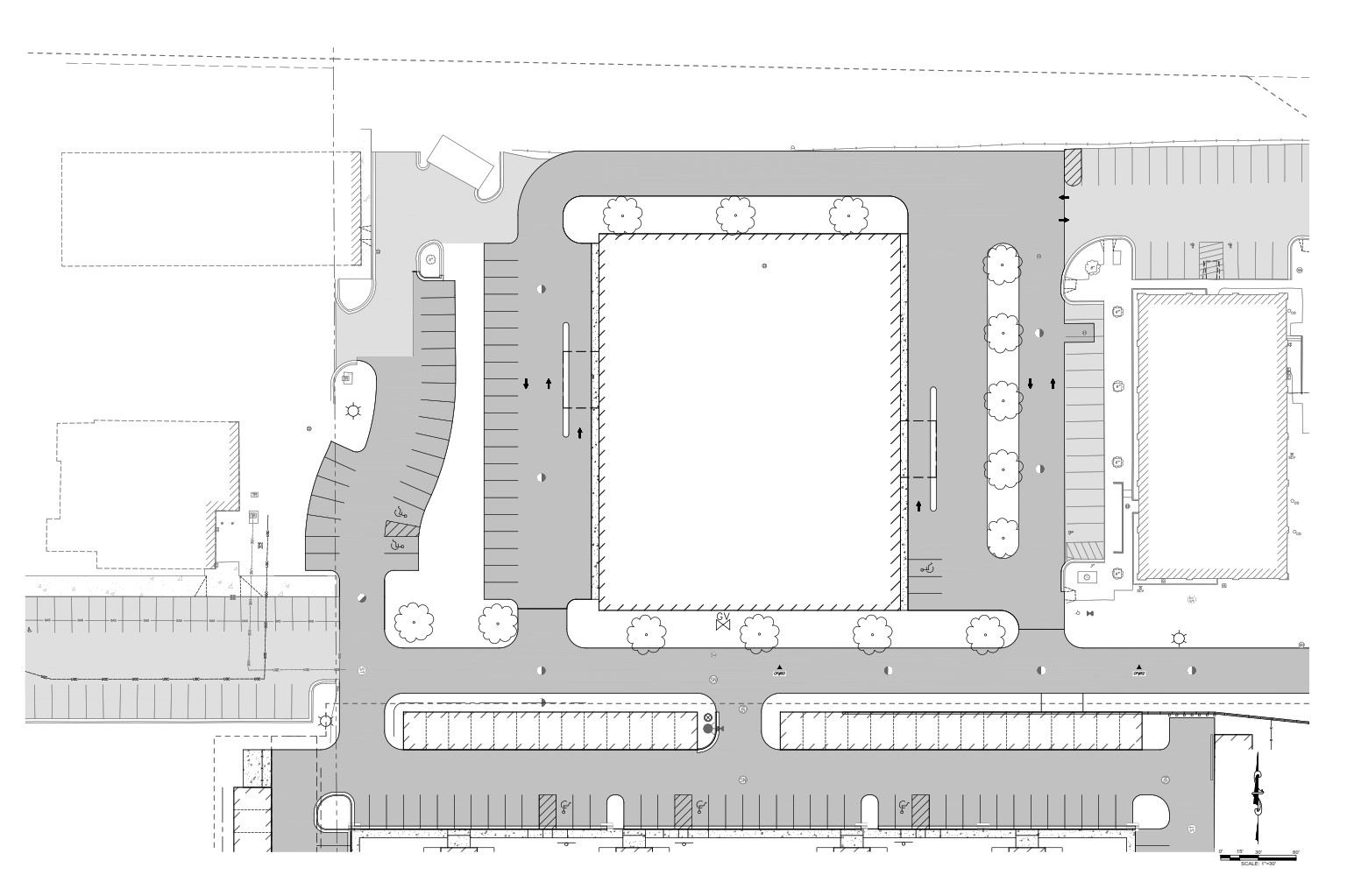
Space Source is pleased to present this development opportunity within the Eastowne of Norton Shores PUD. This 2.06-acre commercial property offers a host of potential commercial uses with favorable zoning with the City of Norton Shores. The site has completed offsite stormwater retention as well as preapproved plans for an indoor self-storage facility. Plans include 96,000 square feet across three levels of climate-controlled storage. This property is ideally situated around both major commercial and residential activity.

View the current property listing here (listing courtesy of Advantage Commercial Real Estate).